梦居整装
引领品牌
  • 环保
    建材
  • 定制
    设计
  • 拎包
    入住
  • 硬装
    软装

24小时装修热线

400-777-2206

首页
当前位置: 首页 家装案例 家装案例 > 佳御家园

佳御家园

点击:1044次时间:2016-03-03
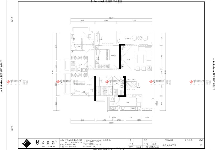
楼盘名称: 佳御家园 案例户型: 四居室
工程面积: 133㎡ 工程造价:
案例风格: 新中式风 设计师: 梦居装饰
设计说明:

上一篇: 中山•葡萄园

上一篇: 汉基花园

更多>本案例设计

设计师:梦居装饰

从业时间:12年以上

擅长风格:

在线预约 查看更多
以上信息将为您保密,请放心填写

为什么选择我们

咨询在线客服

13822725067

服务热线

400-777-2206

微信服务号