咨询在线客服
13822725067
点击:877次
时间:2025-08-17- 点击上方梦居装饰关注21年家装品牌 -

- 为亿万家庭筑造健康、舒适的家居环境 -
项目信息
ABOUT THE PROJEC
设计风格/ 新中式
设计面积/ 700㎡
设计空间/ 别 墅
项目简介:
以东方美学之雅韵打造出蕴藏深厚的文化底蕴与现代审美追求新中式美学家居,让居者在其中感受到丰富的文化层次与生活的温度。设计师将功能性、美学风格与业主的情感需求紧密结合,致力于为业主创造一个既实用又充满东方艺术氛围美感、能让身心彻底放松的理想家园,使业主在这个暖馨舒适的住宅中尽情享受生活的美好,感受新中式住宅的典雅奢华,体验到其中无处不在的舒适松弛感。




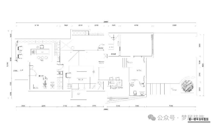
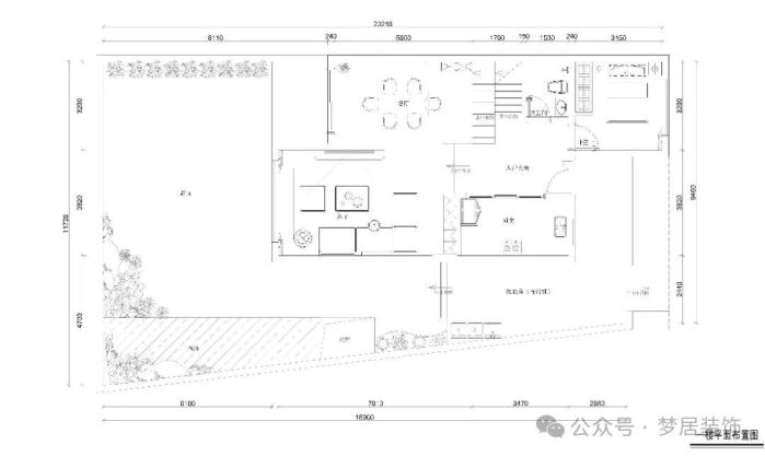
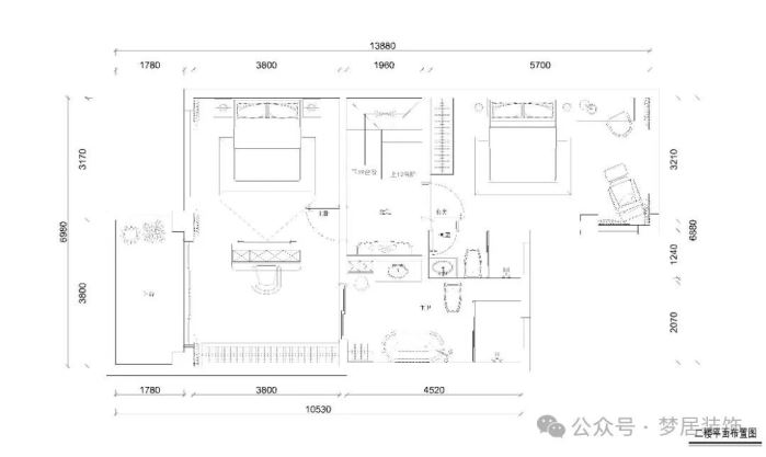
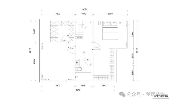
平面布置方案
01 客厅 | Decoration
————————————————————


脱胎于中国传统美学的新中式住宅,处处散发着简洁优雅、典雅大气的东方之美。一楼客餐厅作下沉式处理,自然划分入户区域与客餐厅区域,既保持空间通透,又提升空间的设计感和高级感。


新中式客厅静谧奢华,米白色调与原木搭配,即典雅沉稳又不厚重,空间成为自然的画布,呈现新中式家居自有的肌理与温度。

客厅电视背景墙借鉴了中式漏景的设计手法来衔接空间与空间的关系,营造出多样有趣的视角,空间若隐若现,含蓄雅致。


低饱和度的色彩,视觉上和谐统一舒适悠然,富有意境。四时变幻的院落景色透过大玻璃窗引入室内,增加视觉舒适感,呈现高品质的艺术慢生活。
02 餐厅 | Decoration
————————————————————


餐厅素净雅致,餐具呈现中式奢雅,一瓶冬青点缀其间,奢华感与简约感和谐呈现,营造奢雅而不浮华的用餐氛围。

从餐厅向客厅望去,镂空的电视背景墙让客餐厅空间在视觉上相互渗透,空间更通透,优化空间感的同时也增强了家人之间的互动交流,让日常的烟火气息更具温情。
03 厨房 | Decoration
————————————————————

中厨空间开阔舒适,安排了一个大大的U型操作台,还可以容纳双开门冰箱。一面窗户采光充足,使整个厨房空间更为明亮。

新中式橱柜设计原木色彩沉稳自然,设计质感高级又不乏现代的简约时尚。
04 茶室 | Decoration
————————————————————

茶室简约雅静,中式元素与现代风格巧妙融合、碰撞,呈现出浓郁的东方意境。空间适度的留白,呈现中式风格家居的从容与闲适,雅致而静谧。
05 休闲区 | Decoration
————————————————————


地下室规划为集会客、品茶、运动、休闲、储物等多功能区域。新中式典雅的色彩奢而不扬,和谐地融入生活之中;简约的线条与空间尺度带来通透延展的视野以及更和缓舒适的居住体验。

沙发背后采用了天窗设计,打造一隅小景,不仅给空间增加了采光,自然光线的肆意弥漫,也给人以松弛与休闲感。

休闲区增设到顶的高柜,可以放置书籍收纳藏品。一面玻璃墙让休闲区与书房空间更连续,保持空间的通透感,木质边框也让空间更整体。
06 书房/健身区 | Decoration
———————————————————————

这是一间很有仪式感的书房,新中式实木书桌椅形制革新承古韵,运用墙面做了一排L型的书柜。木质带来的高级、自然质感,营造出一种与自然相融、返璞归真的氛围,庄重之中更显层次与高级感。

靠窗设单人沙发椅与小茶几构成休憩阅读角,与窗外的景观相映成趣,共同营造出和谐而富有诗意的生活氛围,让人在快节奏的当下仍能感受生活的宁静与从容。
07 书房/健身区 | Decoration
———————————————————————

健身房与书房一体,生活场景自由变换,以适应业主多元的生活需求,不同区域之间形成了有趣的互动与对话。
08 主卧 | Decoration
————————————————————

主卧选用浅灰与木色的搭配,整体调性柔和舒适。软装在此基础上深化,简约时尚的黄铜吊灯提升氛围, 打造更温馨适宜的休憩空间。

运用电视墙面进行空间分割,打造半开放式衣帽间,带来更开阔的视觉观感,也让空间舒适通透。


木色的基底打造雅致而宁静的休息氛围,空间设计简约而高级,古朴温润,光线从窗子洒入室内,舒适雅致之感无声流淌。
09 衣帽间 | Decoration
————————————————————



衣帽间统一的木色调以多样化的形式贯穿其中,保持了卧室空间的连贯性与整体性,又完备了此处空间的功能与个性。
10 卫生间 | Decoration
————————————————————



卫生间融入中式美学元素,大理石瓷砖搭配新中式浴室柜带来轻奢质感。柔和的暖色调与中式元素家具相得益彰,干净利落的线条呈现传统与现代融合的新中式家居的独特魅力。
设计师 Designer

刘子杰
梦居装饰集团总设计师
【小小空间是个宇宙,“家”不只是用来“住”的。】
●广东梦居装饰工程有限公司成立于2004年10月,是一家集家居、酒楼、办公空间、大型建筑、园林规划设计于一体,为客户提供专业咨询、设计、施工一条龙服务的实力雄厚、人才荟萃、健康环保的专业装饰设计工程公司。全国拥有100+家分支机构,业务遍布全国九省百余城市。我们一直在为客户寻求一个更好的生活表现形式,一直在探求一种更舒适的家居感觉。
●获得企业荣誉:"广东省消费者满意单位","广东省著名品牌","广东省守合同、重信用企业","全国优秀装饰企业","全国十佳诚信单位","质量、服务、信誉AAA级金牌单位"," ICDA中国家庭装饰服务中心","广东省装饰行业协会理事单位","全国住宅装饰装修行业百强企业","设计创新先进单位"
●地址:中山市东区博爱六路博鳌广场3座首层
●装修热线:400-777-2206




●你可知道,有梦居的地方,每3位高端装修业主中就有1位,选择梦居!
●你可知道,最优秀的设计师团队, 就在梦居!
●你可知道,只专注室内设计装修公司,唯有梦居!
●梦居装饰历来重视网络客户价值,敢于借助网络平台透明装修,工程一目了然。梦居装饰集团,将拥有中国得天独厚的人居环境,以梦居人的严谨、客观以及倡导客户理性消费、感性生活的装修态度,为中国业主提供更环保、更实惠的装修服务。
梦居•在中国

中山北区公司 | 中山东区公司 | 中山南区公司 |
中山西区公司 | 中山三乡公司 | 广东清远公司 |
云南文山公司 | 云南保山公司 | 浙江金华公司 |
广东普宁公司 | 佛山三水公司 | 广西贺州公司 |
广西钦州公司 | 珠海斗门公司 | 江西赣州公司 |
江苏宜兴公司 | 湖南怀化公司 | 江西南康公司 |
广东江门公司 | 广东河源公司 | 广东湛江公司 |
广东惠州公司 | 广西柳州公司 | 广西百色公司 |
广西梧州公司 | 贵州都匀公司 | 贵州遵义公司 |
江西兴国公司 | 广西靖西公司 | 广西河池公司 |
中山坦洲公司 | 广西田阳公司 | 浙江苍南公司 |
广东梅州公司 | 湖南麻阳公司 | 广东开平公司 |
顺德大良公司 | 佛山禅城公司 | 顺德容桂公司 |
广州番禺公司 | 广州从化公司 | 珠海香洲公司 |
江门新会公司 | 广东肇庆公司 | 广西贵港公司 |
四川泸州公司 | 四川绵阳公司 | 湖南湘潭公司 |
顺德北滘公司 | 广州南沙公司 | 湖南郴州公司 |
四川自贡公司 | 江西抚州公司 | 贵州铜仁公司 |
宁波镇海公司 | 呼和浩特公司 | 江门鹤山公司 |
上饶信州公司 | 新疆乌鲁木齐 | 广东梅州公司 |
江苏扬州公司 | 浙江柯桥公司 | 浙江嵊州公司 |
浙江新昌公司 | 浙江海宁公司 | 广西南宁公司 |
| 浙江桐乡公司 | 广东汕头公司 | 广西扶绥公司 |
| 广西平果公司 | 贵州兴义公司 | 四川南部公司 |
| 江西于都公司 | 山东烟台公司 | 江西泰和公司 |
| 云南丘北公司 | 云南昭通公司 | 广东云浮公司 |
| 福建长乐公司 | 广东茂名公司 | 重庆奉节公司 |
| 广西东兴公司 | 广西龙州公司 | 江苏金坛公司 |
| 重庆江津公司 | 福建福鼎公司 | 广西昭平公司 |
| 海南三亚公司 | 广西北流公司 | 福建邵武公司 |
| 江苏睢宁公司 | 江苏泗阳公司 | 广西富川公司 |
| 重庆巫山公司 | 云南开远公司 | 云南丽江公司 |
| 福建安溪公司 | 广西鹿寨公司 | 广东澄海公司 |
| 广西桂平公司 | 云南临沧公司 | 广东东莞公司 |
| 福建德化公司 | 广西宁明公司 | 江苏丹阳公司 |
| 重庆荣昌公司 | 四川宜宾公司 | 福建漳州公司 |
| 四川德阳公司 | 贵州习水公司 | 江苏泰兴公司 |
| 广东潮州公司 | 安徽天长公司 | 江西修水公司 |
| 广东罗定公司 | 福建漳浦公司 | 云南富宁公司 |
| 防城港市公司 | 浙江武义公司 | 期待您的加入 |
欢迎并感谢您关注梦居装饰!

全国直营门店
自有施工团队
业主碑力推
品质材料展厅
城市服务