咨询在线客服
13822725067
点击:533次
时间:2025-09-29- 点击上方梦居装饰关注21年家装品牌 -

- 为亿万家庭筑造健康、舒适的家居环境 -
项目信息
ABOUT THE PROJEC
设计风格/ 现代简约
设计面积/ 190㎡
设计空间/ 三居室
项目简介:
190平方米的大三居空间,以简约低调的设计将空间与生活完美融合,空间视觉体验丰富,简约优雅的造型营造出极具设计感的现代风格住宅,使空间灵动内敛,温馨雅致,简奢之美就此呈现。

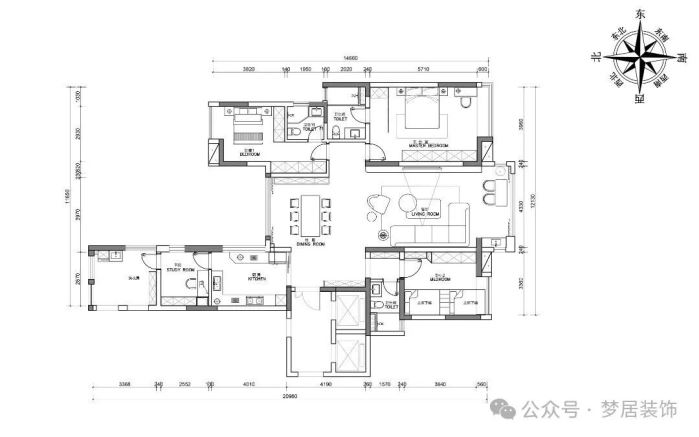
原始结构图

平面布置方案
01 客餐厅 | Decoration
————————————————————


全屋设计以棕色调为主,空间强调色彩的沉静和造型线条的简洁。干净简洁的造型与色彩、材质的搭配营造出空间的质感与惬意。
02 入户 | Decoration
————————————————————

玄关处打造一门到顶收纳柜,四段式设计十分方便日常收纳,开放格的搭配兼具装饰功能,让归家的时刻更温馨舒适。简约的无把手柜门设计,线条流畅,简约大方。
03 客厅 | Decoration
————————————————————

客厅无主灯设计,灯光组合搭配丰富了空间层次,呈现出朗阔旷达的格局。宁静的空间散发着轻熟魅力,展现出舒适与气质的统一,优雅而精致。

悬浮电视背景墙搭配温润的木格栅,凸显空间沉稳、时尚的气质。书籍与摆件作为空间的点缀,活跃空间气氛,时尚又不张扬。
04 餐厅 | Decoration
————————————————————

餐厅选用简约造型长桌,岩板定制的桌面清新自然。皮质餐椅触感细腻,坐享舒适与惬意,棕、咖色搭配,整体简约内敛但不显沉闷。
05 品茗区 | Decoration
————————————————————

阳台封窗入户,设置品茗区,清新舒适的绿植让阳台空间不显单调。闲坐阳台,一束光、一本书、一杯茶、便是一个不受打扰的澄静世界,解锁繁忙都市生活里的减压之境。
06 主卧 | Decoration
————————————————————

主卧延续客厅色调,浅灰杏墙面细腻亲和,辅以木色床头背景墙和布艺床品,体现空间层次,感受居家时光的宁静和温馨。


设置玻璃墙解决卫生间正对床的问题,保留空间通透感,实现空间功能分区。一面大窗将自然光纳入室内,空间通透又舒适。
07 儿童房 | Decoration
————————————————————


儿童房色调安静舒缓,上床下桌的设计打造出学习和休憩空间,梯柜+底抽,孩子的玩具再多也能装得下,配备的护栏守护孩子的安全,为孩子们布置出一个现代舒适又安全温馨的卧房。



●你可知道,有梦居的地方,每3位高端装修业主中就有1位,选择梦居!
●你可知道,最优秀的设计师团队, 就在梦居!
●你可知道,只专注室内设计装修公司,唯有梦居!
●梦居装饰历来重视网络客户价值,敢于借助网络平台透明装修,工程一目了然。梦居装饰集团,将拥有中国得天独厚的人居环境,以梦居人的严谨、客观以及倡导客户理性消费、感性生活的装修态度,为中国业主提供更环保、更实惠的装修服务。
梦居•在中国

中山北区公司 | 中山东区公司 | 中山南区公司 |
中山西区公司 | 中山三乡公司 | 广东清远公司 |
云南文山公司 | 云南保山公司 | 浙江金华公司 |
广东普宁公司 | 佛山三水公司 | 广西贺州公司 |
广西钦州公司 | 珠海斗门公司 | 江西赣州公司 |
江苏宜兴公司 | 湖南怀化公司 | 江西南康公司 |
广东江门公司 | 广东河源公司 | 广东湛江公司 |
广东惠州公司 | 广西柳州公司 | 广西百色公司 |
广西梧州公司 | 贵州都匀公司 | 贵州遵义公司 |
江西兴国公司 | 广西靖西公司 | 广西河池公司 |
中山坦洲公司 | 广西田阳公司 | 浙江苍南公司 |
广东梅州公司 | 湖南麻阳公司 | 广东开平公司 |
顺德大良公司 | 佛山禅城公司 | 顺德容桂公司 |
广州番禺公司 | 广州从化公司 | 珠海香洲公司 |
江门新会公司 | 广东肇庆公司 | 广西贵港公司 |
四川泸州公司 | 四川绵阳公司 | 湖南湘潭公司 |
顺德北滘公司 | 广州南沙公司 | 湖南郴州公司 |
四川自贡公司 | 江西抚州公司 | 贵州铜仁公司 |
宁波镇海公司 | 呼和浩特公司 | 江门鹤山公司 |
上饶信州公司 | 新疆乌鲁木齐 | 广东梅州公司 |
江苏扬州公司 | 浙江柯桥公司 | 浙江嵊州公司 |
浙江新昌公司 | 浙江海宁公司 | 广西南宁公司 |
| 浙江桐乡公司 | 广东汕头公司 | 广西扶绥公司 |
| 广西平果公司 | 贵州兴义公司 | 四川南部公司 |
| 江西于都公司 | 山东烟台公司 | 江西泰和公司 |
| 云南丘北公司 | 云南昭通公司 | 广东云浮公司 |
| 福建长乐公司 | 广东茂名公司 | 重庆奉节公司 |
| 广西东兴公司 | 广西龙州公司 | 江苏金坛公司 |
| 重庆江津公司 | 福建福鼎公司 | 广西昭平公司 |
| 海南三亚公司 | 广西北流公司 | 福建邵武公司 |
| 江苏睢宁公司 | 江苏泗阳公司 | 广西富川公司 |
| 重庆巫山公司 | 云南开远公司 | 云南丽江公司 |
| 福建安溪公司 | 广西鹿寨公司 | 广东澄海公司 |
| 广西桂平公司 | 云南临沧公司 | 广东东莞公司 |
| 福建德化公司 | 广西宁明公司 | 江苏丹阳公司 |
| 重庆荣昌公司 | 四川宜宾公司 | 福建漳州公司 |
| 四川德阳公司 | 贵州习水公司 | 江苏泰兴公司 |
| 广东潮州公司 | 安徽天长公司 | 江西修水公司 |
| 广东罗定公司 | 福建漳浦公司 | 云南富宁公司 |
| 防城港市公司 | 浙江武义公司 | 期待您的加入 |
欢迎并感谢您关注梦居装饰!

全国直营门店
自有施工团队
业主碑力推
品质材料展厅
城市服务