咨询在线客服
13822725067
点击:310次
时间:2025-10-17- 点击上方梦居装饰关注21年家装品牌 -

- 为亿万家庭筑造健康、舒适的家居环境 -
项目信息
ABOUT THE PROJEC
设计风格/ 现代简约
设计面积/ 450㎡
设计空间/ 别 墅
项目简介:
本套别墅可谓是真正意义上的为业主量身定做,具有极强的个性化设计。设计师通过对方案的解读和理解,完全彰显出主人时尚、独立、前沿的性格以及对高品质家庭生活的需求。在这套方案中,生活有自己的节奏,家被打造成自己喜欢的样子。设计师为这套自建别墅空间注入时尚、现代、简约的灵魂,让空间达成生活的平衡。



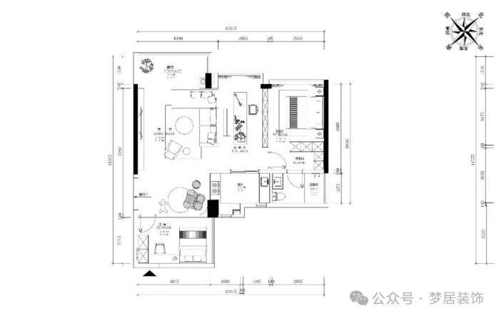
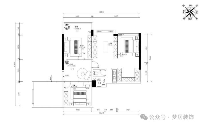
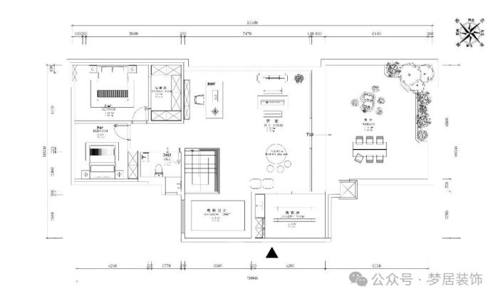
平面布置方案
01 客厅 | Decoration
————————————————————

无主灯设计客厅时尚简约。白色岩板电视背景墙搭配原木柜门黑色柜体在空间中跳跃出来,成为视觉的焦点,灰色纹理自然流淌。

色彩丰富的家具单品在中性基调的客厅中极具时尚感,共同围合出一处趣味空间,这里也成为家庭欢聚的情感交流地。
02 品茗区 | Decoration
————————————————————

品茗区低调沉稳。一整面黑色收纳柜搭配岩板背景墙,内藏灯带,光线映衬下高级质感油然而生,更显精致奢华,整体区域散发着沉静的美感。
03 休闲区 | Decoration
————————————————————

客厅一角被设置成休闲厅,布置温馨而舒适。一张柔软的沙发搭配小边几,落地灯静置一旁,光线洒落舒适静谧。翡色的大理石板材在背景中凸显出来,整个氛围休闲又时尚。
04 主卧 | Decoration
————————————————————


05 衣帽间 | Decoration
————————————————————


主卧利用柜子隔断实现空间功能分区,打造开放式衣帽间,保留空间通透感。衣柜造型简洁利落,中间放置一张换衣凳,让搭配衣物时更从容舒适,享受穿搭乐趣。
06 主卫 | Decoration
————————————————————


07 次卧 | Decoration
————————————————————

08 男孩房 | Decoration
————————————————————

男孩房整体以低饱和度的暖色系打造,营造出宁静、温馨的氛围。现代简约风格打造为孩子营造一个简洁、舒适的成长空间。


09 女儿房 | Decoration
————————————————————


女儿房设计加入了法式元素,营造出一个浪漫、温馨的专属空间。整体以柔和的白色为主调;浅木色的人字拼地板,营造出清新、雅致的氛围。纯净、自然的氛围让空间更具亲和力。

10 直播区 | Decoration
————————————————————


基于业主的工作需求,三楼为业主打造了专属直播工作区。发光环形造型背景墙富有时尚感;光线照明充足,提升空间舒适度,助力业主在舒适且专业的环境中开展直播工作。
11 休闲区 | Decoration
————————————————————


12 洗衣房 | Decoration
————————————————————


洗衣房的设计简洁实用,一边摆放着洗衣机和烘干机,定制的洗衣台方便手洗、熨烫。摆上一个花架,又变成了一个小花房。
13 露台休闲区 | Decoration
————————————————————

露台与室内通过大面积的玻璃隔断门相连,增强了室内外空间的互动性和通透性。内外景色交融延伸,使得空间感得到了极大的提升。


露台打造了一个生态花池,让人仿佛置身于花园之中,感受自然的美好。宽敞的空间也可以满足家庭聚餐、朋友聚会,令相聚互动更加惬意,氛围轻松又舒适。
全国直营门店
自有施工团队
业主碑力推
品质材料展厅
城市服务