咨询在线客服
13822725067
点击:23次
时间:2026-04-12- 点击上方梦居装饰关注22年家装品牌 -

- 为亿万家庭筑造健康、舒适的家居环境 -

项目信息
ABOUT THE PROJEC
设计风格/ 法式设计
设计面积/ 140㎡
设计空间/ 两居室
项目简介:
本案为140㎡法式装修设计,为业主打造去繁就简、兼具优雅浪漫质感与生活温度的居住空间,让浪漫与实用共生。将浪漫线条、柔和色调相融,每一处细节都藏着恰到的精致与舒适的松弛感,诠释法式装修“把优雅融入日常”的生活美学。

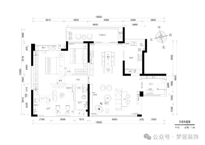
平面布置方案
01 入户 | Decoration
————————————————————

入户是法式浪漫的开篇,兼顾日常收纳与仪式感。弧形垭口柔化空间棱角,自然衔接客厅,一组靠墙的法式复古斗柜呼应前后。
02 客厅 | Decoration
————————————————————

法式设计的优雅让客厅的浪漫与松弛双向奔赴。柔和奶油色调+精简线条打造出松弛又高级的氛围。

阳台与客厅打通,阳光透过落地玻璃窗洒在室内形成柔和光影;家具选择轻盈柔和款式,空间开阔又松弛。
03 餐厅 | Decoration
————————————————————

法式设计打造出浪漫的餐厅氛围。法式圆弧柔化空间,岛台增加收纳,大理石台面增加空间质感。

餐桌一侧的定制餐边柜,与全屋风格统一,白色柜体搭配黄铜拉手,局部预留开放格,既满足收纳需求,又起到装饰作用。
04 厨房 | Decoration
————————————————————

厨房采用U型布局,增加操作台与收纳空间。奶白色地柜➕奶白色吊柜,带骨骼线造型,大气耐看。柜门搭配黄铜拉手,延续全屋的法式精致细节,同时预留嵌入式电器位置,厨房整体舒适又有层次感,让烹饪更从容。
05 主卧 | Decoration
————————————————————

主卧设计以舒适优雅为核心,柔和的色调搭配细腻的艺术漆,打造能让业主卸下疲惫的温馨港湾。精致石膏线勾勒空间,处处透着法式的浪漫;带骨骼线的卧室门与背景墙融为一体,自带“隐形"设计。

床头舒适的拉扣靠背搭配丝绒床品,细腻柔软,舒适度拉满。两侧的复古黄铜花朵壁灯,让空间更具精致浪漫氛围。

床尾通顶法式衣柜搭配金属拉手,简约大气。靠窗打造梳妆台,搭配单人沙发椅,闲时可在此阅读、发呆,享受时光。
06 电竞房 | Decoration
————————————————————

家中独立出一个区域为业主打造电竞休闲空间。设计打破法式的温柔基调,融入个性元素,一侧设计收纳柜用于存放电竞配件,保持空间整洁,打造出兼具格调与实用性的娱乐放松天地。
上一篇: 梦居&装修设计 | 150㎡现代中古设计,拾光中古,现代栖居
上一篇:
全国直营门店
自有施工团队
业主碑力推
品质材料展厅
城市服务