咨询在线客服
13822725067
点击:1053次
时间:2024-09-28- 点击上方梦居装饰关注21年家装品牌 -

- 为亿万家庭筑造健康、舒适的家居环境 -
项目信息
ABOUT THE PROJEC
设计风格/ 现代黑白灰
设计面积/ 87㎡
设计空间/ 三居室
项目简介:
家并不一定要浓墨重彩,黑白灰的极简配置也能营造别具一格的精致小家,轻轻松松装满美满日常。现代极简设计遵循装修的初衷,满足家居功能性, 不过度依赖色彩的表达,即使是极简主义的色彩,也不会显得单调和无趣。

原始结构图

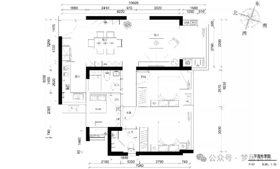
平面布置方案
01 客厅 | Decoration
————————————————————

现代黑白灰风格,小户型人家也可以兼顾颜值、实用的装修方式,黑白灰色调将氛围感拉满。

浅色作为整体基调,家具风格以现代简约为主。质感简约时尚的家具使空间倍感前卫,简洁的造型把家营造出时尚的感觉。

黑白配色,干净纯粹。黑色的电视搭配现代极简的电视柜,放置时尚氛围灯和小绿植,为客厅打造出简练时尚氛围。

柔软的布艺沙发舒适度满分,极简留白的墙面搭配现代艺术画作,一切看上去简约随性,但所显露的高级感怎么也看不腻。

沙发安排一个小边几,平时泡上一杯热咖啡,窝在沙发上也是非常舒适的享受。
02 餐厅 | Decoration
————————————————————

原户型入户是比较狭长的,设计师将原预留厨房空间进行拆改,将厨房内移,餐厅空间也一下开阔起来。入户右边做了嵌入式的冰箱,空间整齐又美观。

餐桌上方装了吊灯,单独增加重点照明,用餐更有氛围感。现代设计感餐桌简约时尚,餐椅在餐后可以收入桌下不占空间。

餐边柜增加收纳,设计与餐厅整体风格协调。平时存储餐具、酒具等物品。开放格增加多样化收纳功能,放置常用小物品或作为展示区放置装饰品。

入户设置斗柜,收纳鞋子、随手小物件等。多样化的收纳形式让极简的空间也有非常实用的效果。
03 阳台 | Decoration
————————————————————


阳台纳入客厅,客厅空间更开阔。安排上洗烘套装,嵌入式设计让阳台不显拥挤。视觉空间带来一种轻松的感受。简约的装饰搭配也能呈现经典的装修效果。
04 主卧 | Decoration
————————————————————

主卧打造大衣柜,四季衣物轻松装下。同色系的柜门降低了衣柜的存在感和拥堵感,房间更显宽敞。床头搭配氛围灯,浅灰色的地毯营造卧室空间的温暖松弛感。
设计师 Designer

周连伟
梦居装饰 • 资深设计师
【用不拘一格的设计理念,致力于为每位业主打造理想中的港湾,力争每个工地质量要求精益求精。】
●经典案例:悦盈新城、东方名都、远洋天曜、大信君汇湾、佳御家园、剑桥郡、中澳滨河湾、保利国际、时代云图、御峰臻品、水木年华、锦绣蓝山、时代倾城、海伦时光、碧桂园凤凰城、雅湖半岛等。
●长按识别二维码添加设计师

●地址:中山市东区博爱六路博鳌广场3座首层
●装修热线:400-777-2206




●你可知道,有梦居的地方,每3位高端装修业主中就有1位,选择梦居!
●你可知道,最优秀的设计师团队, 就在梦居!
●你可知道,只专注室内设计装修公司,唯有梦居!
●梦居装饰历来重视网络客户价值,敢于借助网络平台透明装修,工程一目了然。梦居装饰集团,将拥有中国得天独厚的人居环境,以梦居人的严谨、客观以及倡导客户理性消费、感性生活的装修态度,为中国业主提供更环保、更实惠的装修服务。
梦居•在中国

中山北区公司 | 中山东区公司 | 中山南区公司 |
中山西区公司 | 中山三乡公司 | 广东清远公司 |
云南文山公司 | 云南保山公司 | 浙江金华公司 |
广东普宁公司 | 佛山三水公司 | 广西贺州公司 |
广西钦州公司 | 珠海斗门公司 | 江西赣州公司 |
江苏宜兴公司 | 湖南怀化公司 | 江西南康公司 |
广东江门公司 | 广东河源公司 | 广东湛江公司 |
广东惠州公司 | 广西柳州公司 | 广西百色公司 |
广西梧州公司 | 贵州都匀公司 | 贵州遵义公司 |
江西兴国公司 | 广西靖西公司 | 广西河池公司 |
中山坦洲公司 | 广西田阳公司 | 浙江苍南公司 |
广东梅州公司 | 湖南麻阳公司 | 广东开平公司 |
顺德大良公司 | 佛山禅城公司 | 顺德容桂公司 |
广州番禺公司 | 广州从化公司 | 珠海香洲公司 |
江门新会公司 | 广东肇庆公司 | 广西贵港公司 |
四川泸州公司 | 四川绵阳公司 | 湖南湘潭公司 |
顺德北滘公司 | 广州南沙公司 | 湖南郴州公司 |
四川自贡公司 | 江西抚州公司 | 贵州铜仁公司 |
宁波镇海公司 | 呼和浩特公司 | 江门鹤山公司 |
上饶信州公司 | 新疆乌鲁木齐 | 广东梅州公司 |
江苏扬州公司 | 浙江柯桥公司 | 浙江嵊州公司 |
浙江新昌公司 | 浙江海宁公司 | 广西南宁公司 |
| 浙江桐乡公司 | 广东汕头公司 | 广西扶绥公司 |
| 广西平果公司 | 贵州兴义公司 | 四川南部公司 |
| 江西于都公司 | 山东烟台公司 | 江西泰和公司 |
| 云南丘北公司 | 云南昭通公司 | 广东云浮公司 |
| 福建长乐公司 | 广东茂名公司 | 重庆奉节公司 |
| 广西东兴公司 | 广西龙州公司 | 江苏金坛公司 |
| 重庆江津公司 | 福建福鼎公司 | 广西昭平公司 |
| 海南三亚公司 | 广西北流公司 | 福建邵武公司 |
| 江苏睢宁公司 | 江苏泗阳公司 | 广西富川公司 |
| 重庆巫山公司 | 云南开远公司 | 云南丽江公司 |
| 福建安溪公司 | 广西鹿寨公司 | 广东澄海公司 |
| 广西桂平公司 | 云南临沧公司 | 广东东莞公司 |
| 福建德化公司 | 广西宁明公司 | 江苏丹阳公司 |
| 重庆荣昌公司 | 四川宜宾公司 | 福建漳州公司 |
| 四川德阳公司 | 贵州习水公司 | 江苏泰兴公司 |
| 广东潮州公司 | 安徽天长公司 | 江西修水公司 |
| 广东罗定公司 | 期待您的加入 | ••• |
欢迎并感谢您关注梦居装饰!

全国直营门店
自有施工团队
业主碑力推
品质材料展厅
城市服务